Community Hub and Media Library

Architect: Ganko
Location: Brescia
Year: 2025 -
Date: December 7, 2025

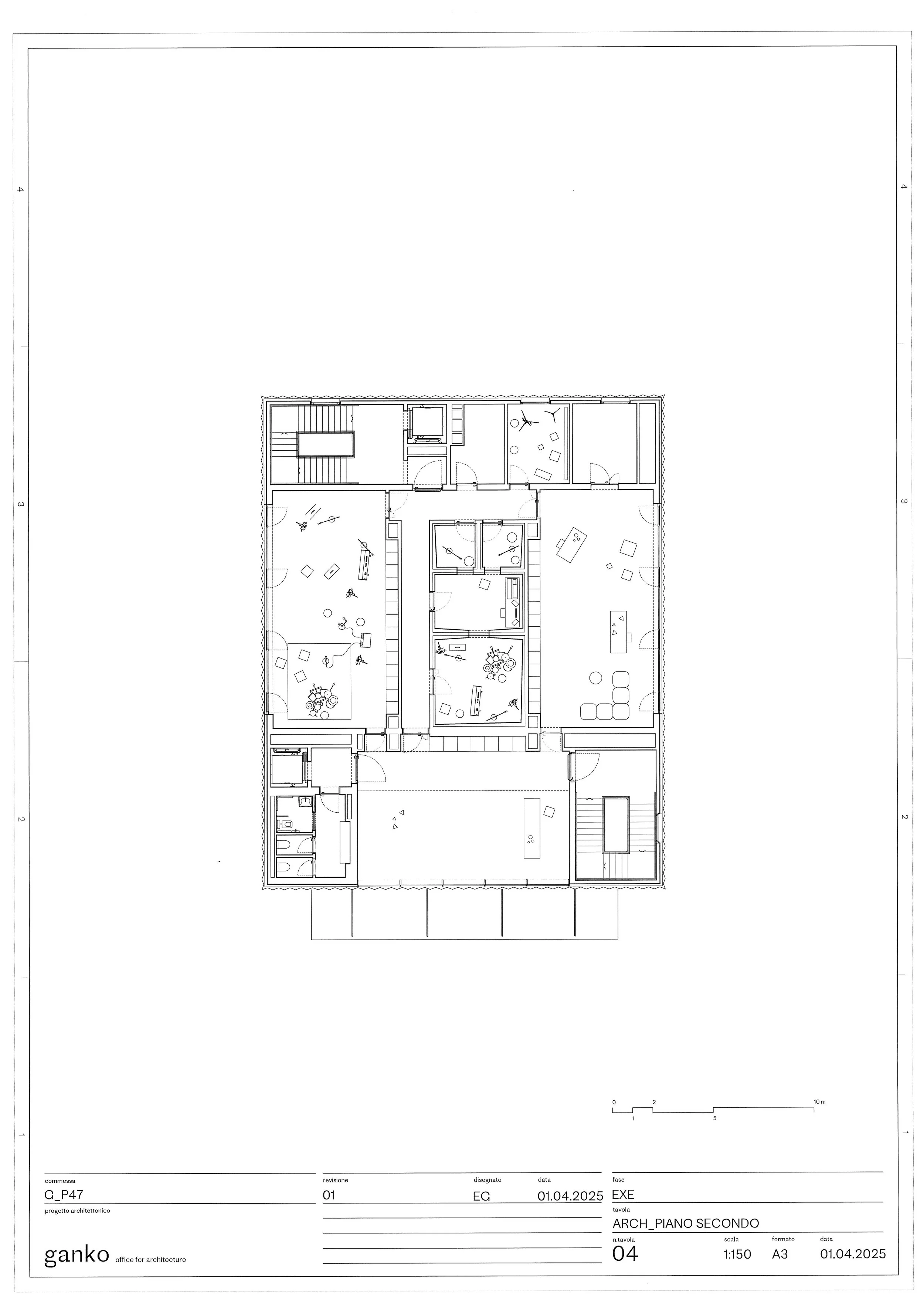
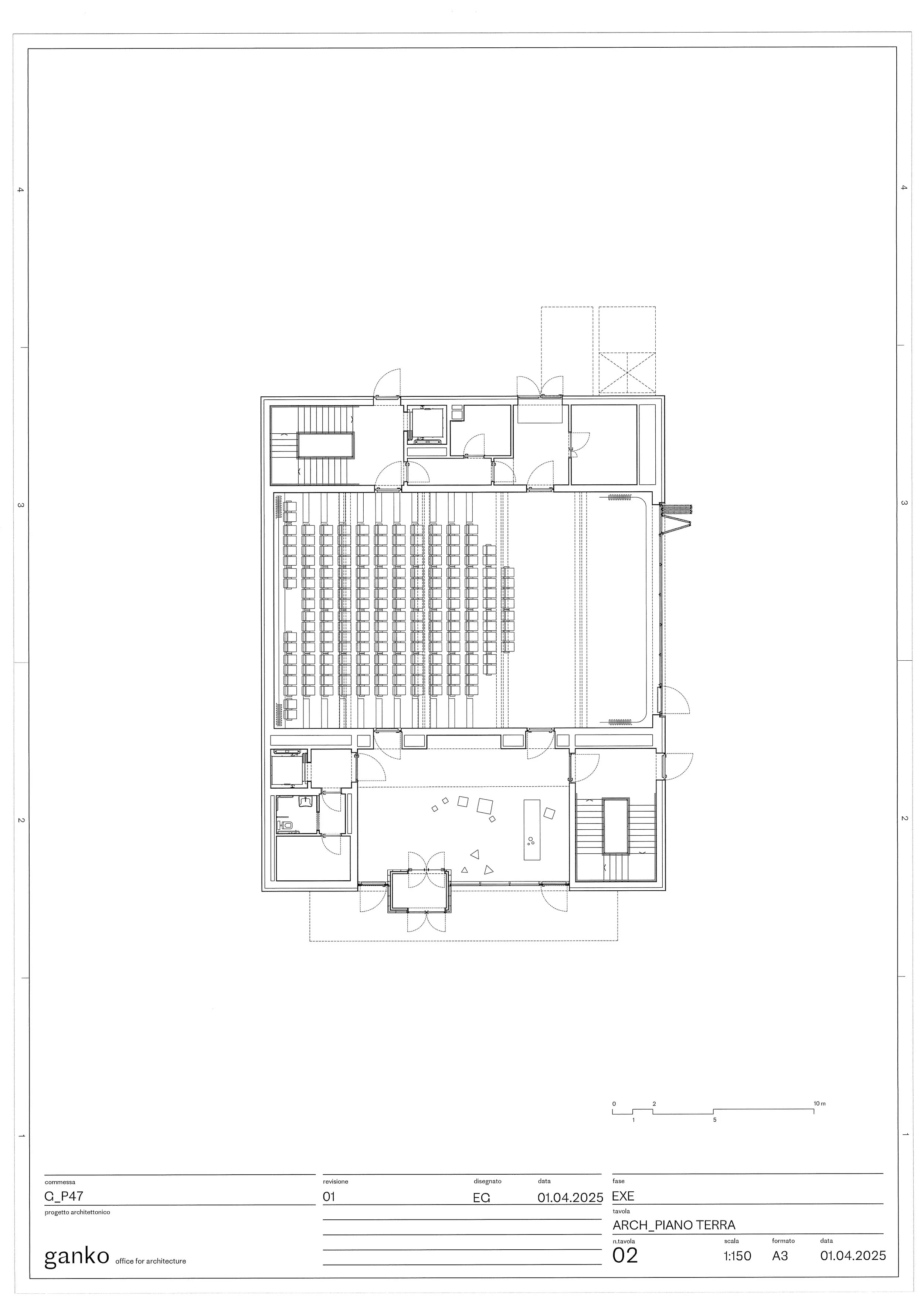
For the Community Hub and Media Library of Brescia, the project foregrounds the design of an infrastructural framework capable of supporting a broad spectrum of appropriations—education, co-working, creative production, and leisure—without predetermining them. The ambition was to conceive a spatial device rather than a programmatic container, enabling the building to evolve with its community.

Developed in close collaboration with the structural engineers OperaMista, the project employs a system of prefabricated, exposed timber elements in which structure and space reciprocally define one another. This constructive choice—both economical and expressive—minimises construction time and cost while amplifying spatial generosity, legibility, and long-term adaptability.

A continuous corrugated aluminium envelope wraps the building. Few yet monumentally scaled openings punctuate this abstract skin, identifying thresholds and defining calibrated moments of interaction between inside and outside. In a context marked by the scattered presence of utilitarian sheds and containers, the project does not pursue civicness through figurative nostalgia or historicist resonance, but by intensifying abstraction.

Asserting presence through clarity rather than representation, the project takes position within a condition that is ever more common in contemporary Europe: territories where the modern has ceased to be an oppositional paradigm and has instead become the diffuse, conflicted background of daily life. Working within this diluted modernity, the building questions the assumption that peripheral contexts can be “rescued” by mimicking the forms or atmospheres of traditional centres. Instead, it explores how such territories might construct their own civic image —one emerging from their actual material and spatial conditions rather than from borrowed urban models.

Rooted in the modern lineage of the “big box,” the project seeks to articulate civic presence through radical simplicity—an architecture precise in form yet open-ended in use, capable of accommodating the diverse and evolving practices of its community.

Visitors are invited to engage with Ganko’s work and gain insight into their creative process through the project Community Hub and Media Library. The development of the project, along with further reflections, can be explored on their website:

https://ganko.it/

Next
Next

Corte del design - Max kresse